






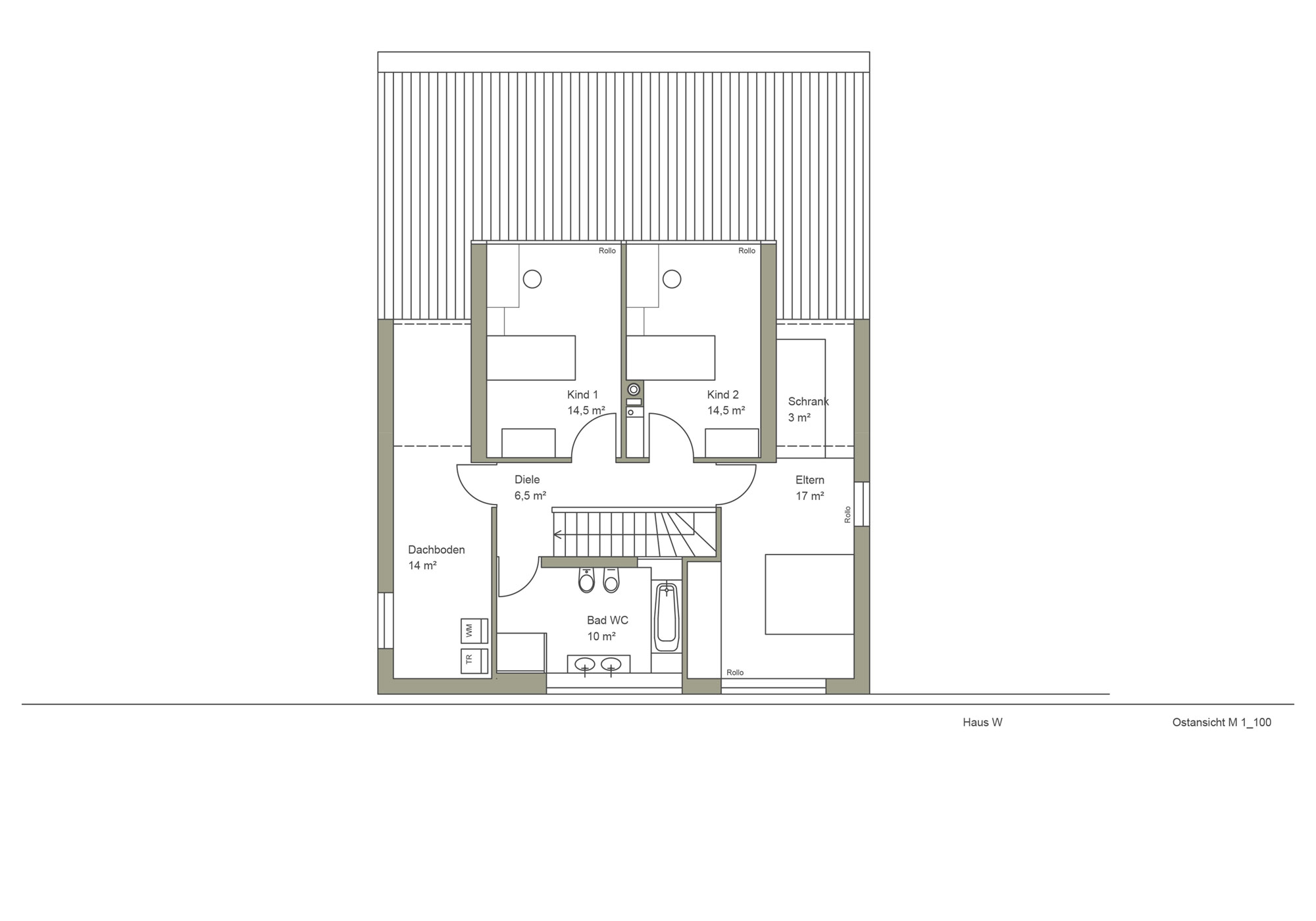
Für den Neubau eines kleinen Einfamilienwohnhauses wurden wir mit der Konzeptentwicklung beauftragt. Die Lage des Grundstücks am Rand einer Marktgemeinde im Westen von Nürnberg hat zu der Entscheidung geführt, die Gebäudeform aus dem Vorbild einfacher landwirtschaftlicher Betriebsgebäude herauszuentwickeln. Im Bebauungsplan wurde ein Vollgeschoss festgesetzt. Mittels der gewählten Dachform konnten wir die Festlegung des Bebauungsplans ausnutzen, die verbleibende Grünfläche konnte dadurch optimiert werden. Im Erdgeschoss wurden um einen zentralen Kern mit Haustechnik und Treppe, Wohn-/Esszimmer, Küche, Arbeits- und Eingangsbereich angeordnet. Die Räum sind miteinander verbunden, ein freies Begehen um den Kern ermöglicht eine Abfolge unterschiedlicher Außenbeziehungen.