


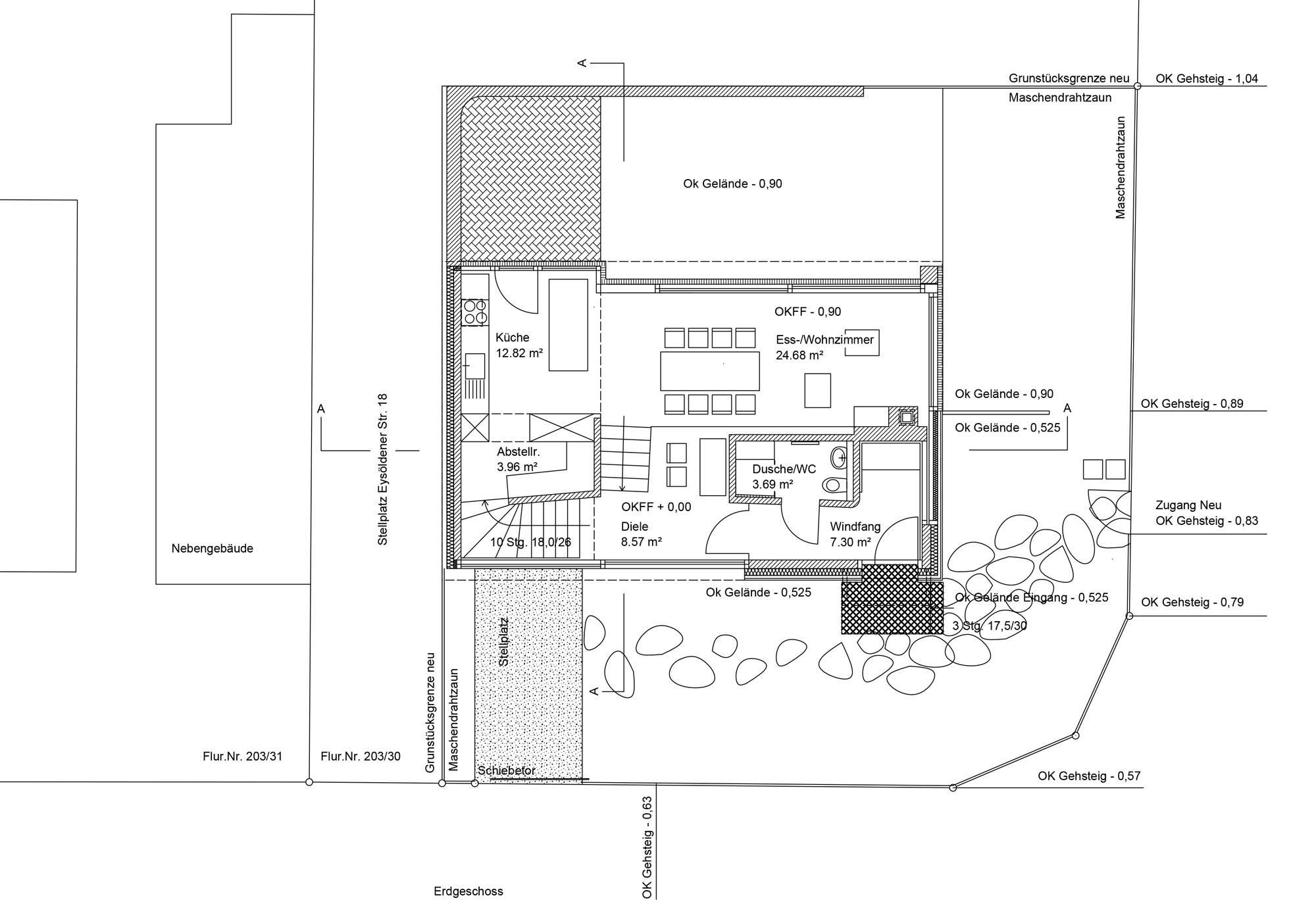
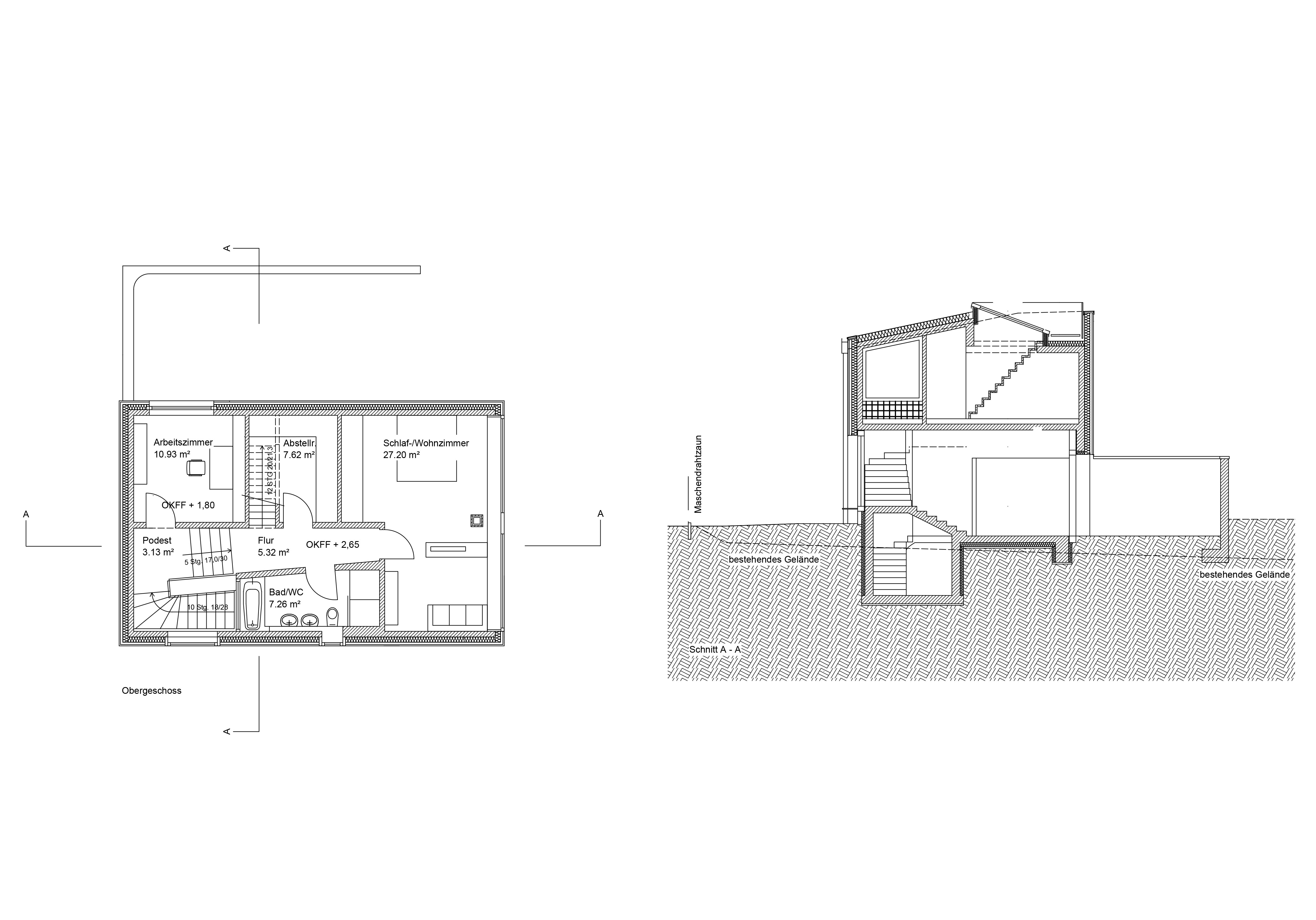
Auf einem großen Doppelhausgrundstück sollten ein freistehendes kleines Wohnhaus errichtet werden. Die einfache Gebäudeform und die Materialwahl der Fassade in Holz sollte das neue Gebäude unaufdringlich neben der bestehenden Bebauung erscheinen lassen. Der offene Grundriss auf verschiedenen Ebenen erlaubt großzügige Raumbeziehungen.